Gossau:
Helle Büroräume mit Aussicht im 3. Obergeschoss
Objekt-Nr.: S02

Fassadejpg

Geschäftseingang.jpg

Rampe.jpg

Büro.jpg

Büro.jpg

Büro.jpg

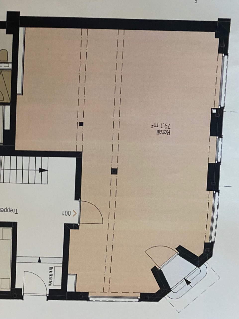
GrundrissplanIMAG







Mietpreis zzgl. NK:
586 CHF pro Monat
Büro-/Praxisfläche ca.:
30 m²
Wir vermieten attraktive, lichtdurchflutete Büroräume à je 30m2 im 3. Obergeschoss eines gepflegten Geschäftshauses. Die Räume bieten eine schöne Aussicht und ein angenehmes Arbeitsumfeld.
Auf dem gleichen Stockwerk stehen Ihnen folgende Annehmlichkeiten zur Verfügung:
Personen- und Warenlift
Kleine Gemeinschaftsküche
Separates WC mit Dusche
Die vier Büros befinden sich nebeneinander, teilweise mit Verbindungstüren – ideal für flexible Nutzungsmöglichkeiten.
Im gesamten Gebäude sind bereits diverse KMU’s aus verschiedenen Branchen eingemietet, was spannende Synergien und unkomplizierte Vernetzungsmöglichkeiten bietet.
Optional: Aussenparkplatz CHF 50.-- kann bei Bedarf dazu gemietet werden.
Haben wir Ihr Interesse geweckt?
Gerne zeigen wir Ihnen die Räumlichkeiten persönlich – wir freuen uns auf Ihre Kontaktaufnahme!
Zimmeranzahl: 1
Kantine/Cafeteria: ja
Fahrstuhl: ja
Lastenaufzug: ja
Die von uns gemachten Informationen beruhen auf Angaben der Eigentümer/in. Für die Richtigkeit und Vollständigkeit der Angaben kann keine Gewähr bzw. Haftung übernommen werden. Ein Zwischenverkauf und Irrtümer sind vorbehalten.
Wir weisen auf unsere Allgemeinen Geschäftsbedingungen hin. Durch weitere Inanspruchnahme unserer Leistungen erklären Sie die Kenntnis und Ihr Einverständnis.
Das könnte Ihnen auch gefallen
Ladenlokal mit Nostalgie an best frequentierter Lage!

D Agostino Immobilien GmbH
Herr Sergio D'Agostino
Brandstrasse43
8340 Hinwil
Telefon: +41 79 2219870
Büro: +41 79 2219870
Mobil: +41 79 2219870

















