Hittnau:
6,5 Zimmer-Haus mit Gewerberaum (94m2)
Objekt-Nr.: S01

01

02

03

04

05

06

backbone 538737-B 046 WEB 1

08

09

10

11

12

12a













Preis:
1`350`000 CHF
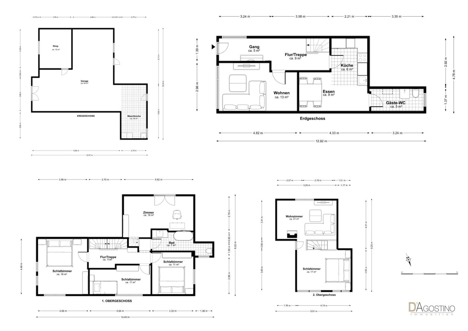
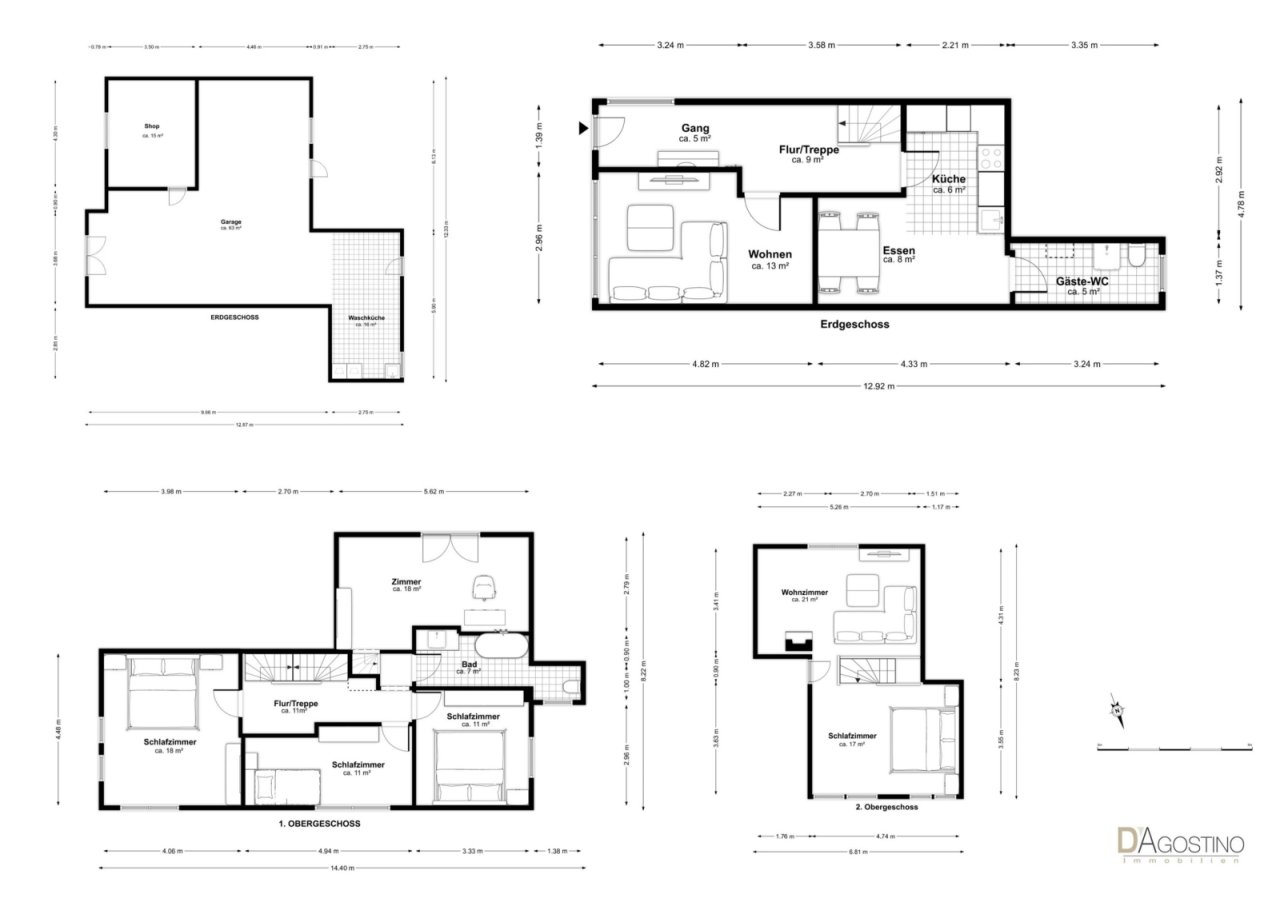
Wohnfläche ca.:
160 m²
Grundstück ca.:
428 m²
Zimmeranzahl:
6,5
Dieses freistehende Einfamilienhaus bietet Ihnen 160m2 komfortable Wohnfläche sowie eine direkt angeschlossene, grosszügige Garage mit 94m2 Nutzfläche. Die Fläche eignet sich hervorragend für ein stilles Gewerbe, ein Atelier, Lager oder auch als erweiterter Arbeitsraum für Selbstständige.
Die Garage verfügt über einen separaten Zugang und viel Platz – ideal für alle, die Wohnen und Arbeiten an einem Ort verbinden möchten. Auch als Kapitalanlage bietet dieser Gebäudeteil attraktives Potenzial.
Highlights:
• Gepflegte und lichtdurchflutete Wohnfläche 160m2
• Gartenanteil 142m2
• 94m2 vielseitig nutzbare Garage/Werkstatt mit separatem Zugang
• Ideal für Atelier, Lager, Werkstatt oder Home-Business
• Kombination aus Wohnen & Arbeiten möglich
• Ruhige, familienfreundliche Lage
• Whirlpool für ca. 6 Personen
• Garten, Sitzplatz und mehrere Aussenparkplätze
Entfernungen:
Busverbindung: Vor dem Haus
Kindergarten : 100m
Schule : 150m
Ärztehaus : 500m
Steiner Beck : 450m
Migros : 450m
Hinweis:
Die Flächen basieren auf Messungen gemäss SIA 416.
Etagenanzahl: 2
Anzahl Schlafzimmer: 5
Anzahl Badezimmer: 2
Keller: teil unterkellert
Anzahl der Parkflächen: 2 x Außenstellplatz; 3 x Garage
Verfügbar ab: nach Vereinbarung
Die von uns gemachten Informationen beruhen auf Angaben der Eigentümer/in. Für die Richtigkeit und Vollständigkeit der Angaben kann keine Gewähr bzw. Haftung übernommen werden. Ein Zwischenverkauf und Irrtümer sind vorbehalten.
Hinweis: Die angegebenen Flächen und Ausmasse wurden gemäss SIA-Norm 416 erhoben. Für die Richtigkeit und Vollständigkeit der Angaben wird keine Haftung übernommen.
Wir weisen auf unsere Allgemeinen Geschäftsbedingungen hin. Durch weitere Inanspruchnahme unserer Leistungen erklären Sie die Kenntnis und Ihr Einverständnis.
Das könnte Ihnen auch gefallen

D Agostino Immobilien GmbH
Herr Sergio D'Agostino
Brandstrasse43
8340 Hinwil
Telefon: +41 79 2219870
Büro: +41 79 2219870
Mobil: +41 79 2219870


























